
Casa Tulip
Ort: Pieve di Soligo, Italien
Bauherr: Privat
Zusammenarbeit mit: Giulia Da Ros
Tätigkeitsbereich: Entwurf, Detailplanung, Gestalterische Leitung
Zeitraum: 2020
Fotos: Giulia Da Ros
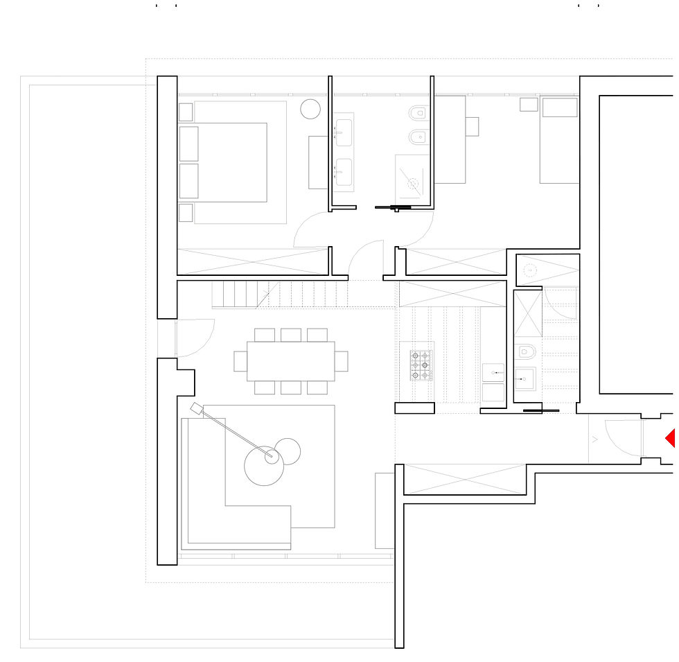
Eine über die Jahre unvollendet gebliebene Wohnung mit ineffizient genutzten Räumen bot einer jungen dreiköpfigen Familie die Gelegenheit, ein massgeschneidertes Zuhause zu schaffen. Die zentrale Herausforderung bestand darin, innerhalb der bestehenden Quadratmeter ein zusätzliches Zimmer zu integrieren, das sowohl als Gäste- als auch als Arbeitsraum genutzt werden kann.
Über den schmalen, mit Einbauschränken versehenen Eingangskorridor gelangt man in den lichtdurchfluteten Wohn- und Essbereich, der dank der grossen Fensterfront in direktem Bezug zur Terrasse steht. Die räumliche Kompression des Ganges sowie das Weissstreichen der Dachbalken betonen und inszenieren die Grosszügigkeit des überhohen Wohnraums.

Die Höhe wurde genutzt, um ein Mezzanin einzufügen, auf dem das zusätzliche Gästezimmer Platz fand. Unterhalb dieser neu geschaffenen Fläche wurde die Küche positioniert. Jeder Zentimeter wurde im Detail geplant: Der Bereich unter der neuen Treppe dient den Hochschränken, während die Kochinsel eine natürliche Abtrennung zum Essbereich bildet. Die neue Stahltreppe zum Mezzanin thematisiert die zuvor kahle, hohe Wand zum Schlafbereich und wird zugleich zum Blickfang.
Dank des hohen Fensters im Essbereich und des bestehdnen Dachfensters ist der neue Raum optimal belichtet und kann flexibel als Gästezimmer oder Arbeitsecke genutzt werden. Am Eingang wurde ein zweites Badezimmer vorgesehen, das ursprübglich vor allem als Waschküche dienen sollte.




Durch die leichte Verschiebung der Trennwand zu einem der Schlafzimmer konnte jedoch genügend Platz für eine zusätzliche Dusche geschaffen werden. Dank der inszenierten Installationswand und einer warmen, integrierten Beleuchtung erhielt auch dieser funktional gedachte Raum eine deutliche Aufwertung und kann bei Bedarf als Gäste-WC genutzt werden.
Die weissen Wände und die helle Dachuntersicht stehen im Kontrast zu den dunklgrauen Details der Stahltreppe und der Fensterprofile, die dadurch subtil hervorgehoben werden. Die eher kühle Loft-Atmosphäre wird durch die warmen Töne des Parkettbodens und eine integrierte Beleuchtung bewusst aufgewärmt: Eine zurückhaltende Kulisse für die persönliche Gestaltung durch die Bauherrschaft.






